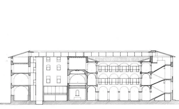
Rehabilitació de l’antic hospici, obra de Ventura Rodríguez, s. XVIII.
Client: Generalitat de Catalunya. Departament de cultura
Pressupost: 1.502.530€
Superfície construïda: 5.195 m2
Col·laboració amb: Bosch – Tarrús, arquitectes i Narcís Comadira, pintor
Concurs: Premi FAD d’Arquitectura 1987, Finalista
Data: 1986



